Exklusive Chance
Einfamilienhaus Magdeburg-Hopfengarten:
Einfamilienhaus mit Potenzial in Magdeburgs Top-Lage
Magdeburg Hopfengarten
– der Name steht in Magdeburg für stabile Nachbarschaften, Ruhe und nachhaltige Wertentwicklung.
Hier erwerben Sie kein Standardhaus, sondern die seltene Chance, ein Zuhause nach Ihren Vorstellungen zu gestalten.
In einer Zeit, in der viele Neubauten austauschbar wirken, bietet diese Doppelhaushälfte mit…
Weiterlesen
Familienfreundliche Doppelhaushälfte mit außergewöhnlichem Grundstück und großem Entwicklungspotenzial
Massive Substanz – Großzügiger Raum – Seltene Gelegenheit in Magdeburg Hopfengarten
Diese solide massiv gebaute Doppelhaushälfte bietet die ideale Grundlage für Familien, die ein Zuhause nach eigenen Vorstellungen gestalten möchten.
Mit einer Grundstücksfläche von 1.062 m² eröffnet sich Ihnen ein Freiraum, der in dieser gefragten Wohnlage des Hopfengartens nur selten verfügbar ist.
Hier investieren Sie nicht nur in ein Haus, sondern vor allem in ein wertbeständiges Grundstück mit langfristiger Perspektive –
die vorhandene Bausubstanz bildet dabei eine stabile Basis für Ihre Zukunftspläne.
Grundrisse
Haus und Garten
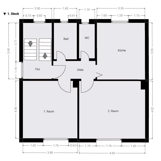
das Erdgeschoss
das Obergeschoss
Dachgeschoss und Keller
Grundrisse
Haus und Garten
das Erdgeschoss
das Obergeschoss
Dachgeschoss und Keller
die harten Fakten
Kaufpreis
nur 280.000 ,- €
bei einem Bodenwert von ca. 250.000,- €
Quelle: Gutachterausschuss für Grundstückswerte in Sachsen-Anhalt
Baujahr
ca. 1924
Wohnfläche
ca. 122 m² + Ausbaureserve
Zimmer
6 Zimmer + Vollkeller+ Ausbaureserve
Erdgeschoss:
Küche ca. 12,47 m²
1 Raum ca. 15,01 m²
2 Raum ca. 18,28 m²
Bad mit Dusche ca. 6,90 m²
zzgl. Terrasse
Obergeschoss:
Kind 1 ca. 11,42 m²
Kind 2 ca- 12,67 m²
Kind 3 ca. 14,03 m²
Bad ca. 8,75 m²
Flur ca. 4,65 m²
Keller:
Schlafzimmer
Büro
Heizung / Hobby
HWR
Grundstück
ca. 1062 m²
Stellplätze
Garage
Carport
Heizung
Gasheizung
Energieverbrauchssausweis
vom: 22.04.2026
gültig bis: 21.04.2036
Energieträger: Gas
Energievverbrauch: 137,9 kWh(m²a)
Primärenergieverbrauch: 151,7 kWh(m²a)
inkl. Warmwasser
Energieeffiziensklasse: E
Kontakt zu uns:
Bitte sprechen Sie uns an. Tel: 0177 6239003
Hinweise zur Verarbeitung Ihrer Daten finden Sie hier: https://immodrom.de/datenschutzerklaerung/
#MagdeburgHopfengarten #EinfamilienhausMagdeburg #Hauskauf #ImmobilienMagdeburg #Hopfengarten #Eigenheim #Sanierungschance #MacherGesucht #WohnenInMagdeburg #Immodrom

